
Bastarden (2023)
In 1755 Denmark, Captain Ludvig Kahlen sets out to cultivate the uninhabitable Jutland moorland, driven by ambition and a desire for honor. Facing harsh natural conditions and opposition from the ruthless local landowner Frederik De Schinkel, Kahlen must fight for his vision against both the elements and human greed. Alongside a group of settlers and the enigmatic Ann Barbara, he challenges the rigid social order of the time, determined to carve out his own destiny.
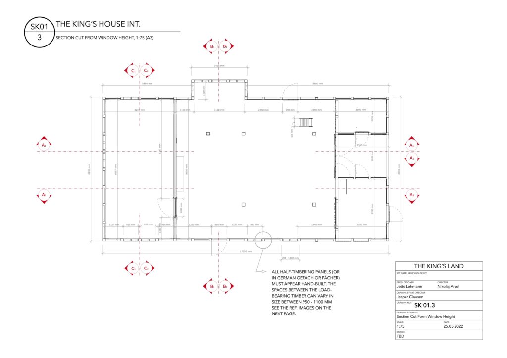
Produced by: Zentropa
Producer: Louise Vest
Writers: Nikolaj Arcel, Anders Thomas Jensen, Ida Jessen
Director: Nikolaj Arcel
Production Designer: Jette Lehmann
Art Directors: Jesper Clausen (Denmark), Seth Turner (Germany), Frantisek Weber (Czech Republic)
Shot on location in Czech Republic, Germany and Denmark with major set build on the moorland in Jutland (DK), near Viborg and in Halle, Leipzig, Germany.
Main cast: Mads Mikkelsen, Amanda Collin, Simon Bennebjerg
FRAMES
SET DRAWINGS
WORK IN PROGRESS
INSPIRATION AND REFERENCES























































